- zdjęcia
- mapa
- street view
- plan
zgłoś nieaktualną ofertę
Opis
Na sprzedaż wyjątkowe mieszkanie w zrewitalizowanej kamienicy przy ul. Kordeckiego w Bydgoszczy. To przestronny, starannie zaprojektowany lokal, który łączy urok historycznej architektury z nowoczesnym komfortem. Idealne zarówno do zamieszkania, jak i jako inwestycja o wysokim potencjale najmu – długoterminowego lub krótkoterminowego.
 
Lokalizacja
Kameralna ulica Kordeckiego w samym centrum miasta – tuż obok linii tramwajowej, a jednocześnie blisko Wyspy Młyńskiej i Starego Miasta. To połączenie miejskiego życia, spokoju i dostępu do zieleni, które przyciąga zarówno mieszkańców, jak i najemców.
 
Budynek
Kamienica po pełnej rewitalizacji: ocieplenie, nowy dach, instalacje i monitoring. Zamykane podwórze z możliwością parkowania oraz pomieszczeniem gospodarczym ok. 10 m². Zadbany charakter budynku zachowuje urok przedwojennej zabudowy z duszą.
 
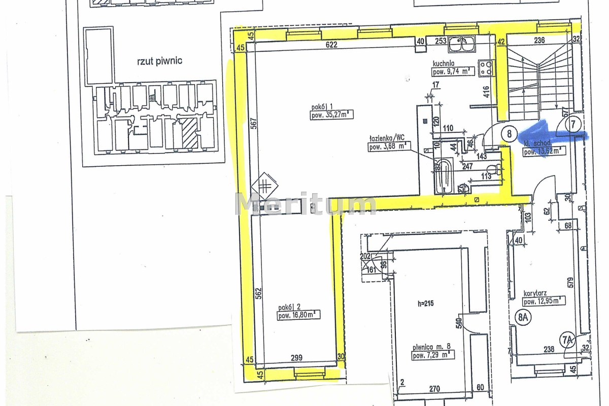
Mieszkanie
Powierzchnia ok. 66 m², drugie – ostatnie piętro, co gwarantuje ciszę i prywatność. W skład wchodzą:
salon z aneksem kuchennym (35,27 m²),
sypialnia (16,80 m²),
kuchnia (9,74 m²),
łazienka (3,68 m²),
piwnica (7 m²) + pomieszczenie gospodarcze na podwórku (ok. 10 m²).
Wnętrze jasne, przestronne i nowocześnie urządzone – dębowy parkiet, zabudowy na wymiar (Komfort), sprzęt AGD w komplecie.
 
Dodatkowy atut
Możliwość budowy prywatnego tarasu na dachu przylegającej części kamienicy, z bezpośrednim wyjściem z salonu – idealne miejsce na odpoczynek z widokiem na miasto i znakomita wartość dodana inwestycji.
 
Dlaczego warto
To mieszkanie z duszą – dla osób, które szukają stylu, przestrzeni i bliskości centrum, a zarazem spokoju. Dla inwestora – bezpieczna lokata kapitału z wysokim potencjałem najmu.
Wyjątkowe połączenie historii, komfortu i funkcjonalności – miejsce, które naprawdę zachwyca.
Nieruchomość
- rodzaj budynkukamienica
- standard
- opłaty w czynszuadministracja, Części wspólne, fundusz remontowy, sprzątanie, woda, wywóz śmieci
- opłaty wg licznikówprąd
- liczba pięter w budynku3
- piwnica [m2]7,29 m2
- stan lokaluidealny
- stan prawnyWłasność
- mies. czynsz admin.586 PLN
- oknaPCV
- instalacjewymienione
- rok budowy1910
- wodaciepła - terma
- dojazdasfalt
- otoczenieZabudowane
- ogrzewanieKOMINEK
- usytuowanieśrodkowe
Pomieszczenia
- wysokość pomieszczeń2,9000
- powierzchnia pokoi35,27 16,80 m2
- podłogi pokoiparkiet
- typ kuchniz nowoczesną zabudową kuchenną
- rodzaj kuchnianeks kuchenny - połączony z salonem
- powierzchnia kuchni9,4
- podłoga kuchnipłytki
- typ łazienkirazem z wc
- liczba łazienek1
- powierzchnia łazienki [m2]3,68
- glazura łazienkiglazura
- wyposażenie łazienkipralka, umywalka, wanna, WC
@meritum.nieruchomosci.pl zostaw wiadomość
 
				 
								 
								 
								 
								 
								 
								 
								 
								 
								 
								 
								 
								 
								 
								 
								