- zdjęcia
- mapa
- street view
- plan
zgłoś nieaktualną ofertę
Opis
Na sprzedaż wyjątkowe mieszkanie po kapitalnym remoncie w kamienicy po kapitalnym remoncie.
Przestronny i starannie urządzony lokal, w którym klimat historycznej zabudowy łączy się z nowoczesnym komfortem. Idealny zarówno do zamieszkania, jak i jako inwestycja pod wynajem.
Kameralna ul. Kordeckiego znajduje się w samym sercu miasta. W bezpośrednim sąsiedztwie znajdują się linie tramwajowe, autobusowe a kilka minut spacerem dzieli od Wyspy Młyńskiej i Starego Miasta.
BudynekKamienica przeszła pełną rewitalizację: nowa elewacja z ociepleniem, dach, instalacje, czujki dymu oraz monitoring. Do dyspozycji jest zamykane podwórze (brama na pilota) z możliwością parkowania auta oraz pomieszczenie gospodarcze o powierzchni ok. 10 m². Budynek zachował swój przedwojenny charakter i klimat, jednocześnie oferując nowoczesny standard.
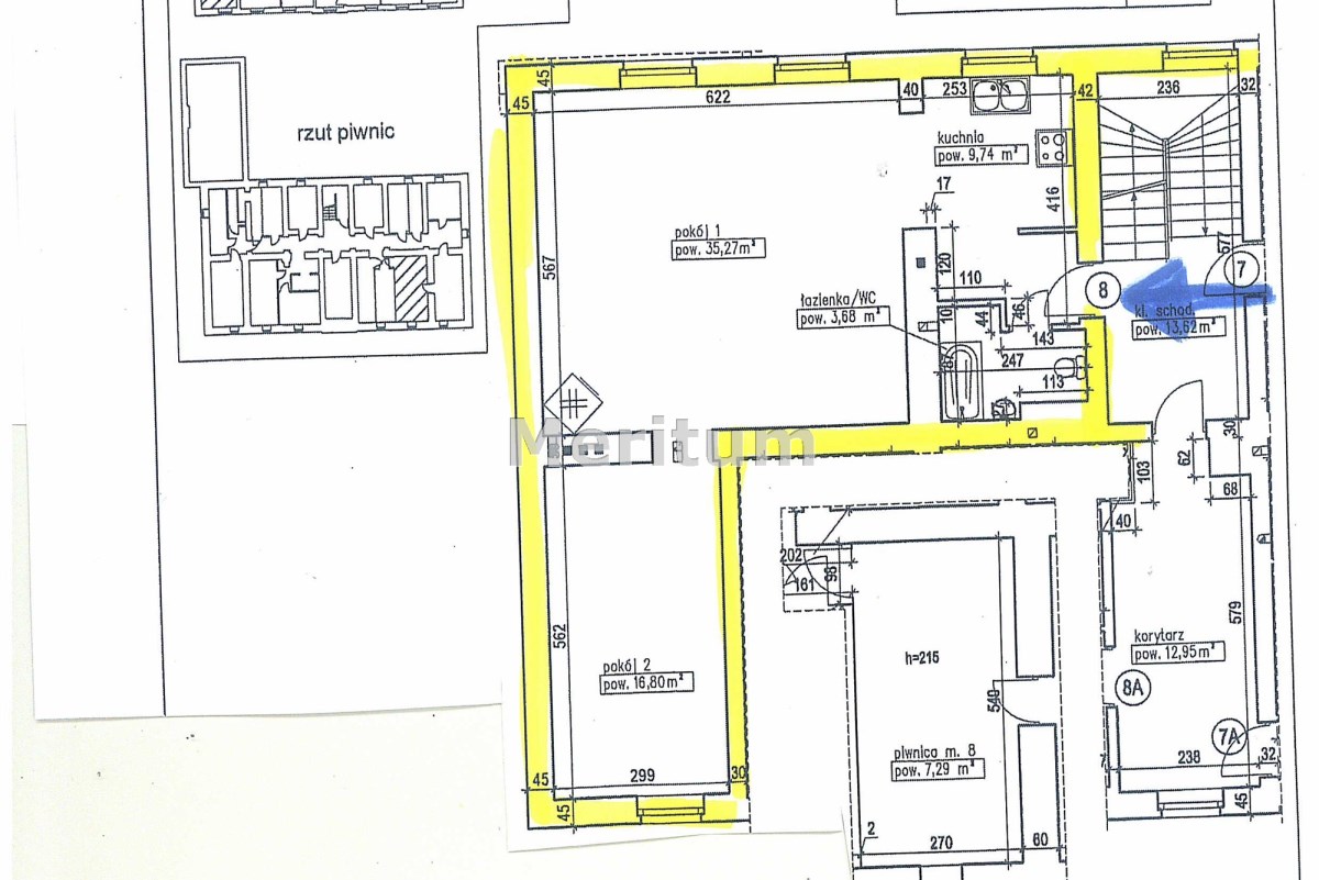
MieszkaniePowierzchnia 65,49 m², położone na drugim piętrze. W skład mieszkania wchodzą:
salon z aneksem kuchennym – 35,27 m²,
sypialnia – 16,80 m²,
kuchnia – 9,74 m²,
łazienka – 3,68 m²,
DODATKOWO: piwnica – 7 m² oraz pomieszczenie gospodarcze na podwórku – ok. 10 m².
Wnętrza są jasne, przestronne i gustownie urządzone. Dębowy parkiet, zabudowy na wymiar (Komfort) oraz pełne wyposażenie AGD podkreślają wysoki standard wykończenia.
Dodatkowy atutIstnieje możliwość niedużym nakładem kosztów dobudowy prywatnego tarasu na dachu przyległej części kamienicy od strony cichego podwórka, z bezpośrednim wyjściem z salonu. To będzie doskonała przestrzeń na relaks co zwiększający atrakcyjność i potencjał inwestycyjny nieruchomości.
Dlaczego wartoTo mieszkanie dla osób, które cenią styl, przestrzeń i bliskość centrum, a jednocześnie chcą mieszkać w spokojnym otoczeniu. Dla inwestora — bezpieczna, rentowna lokata kapitału.
Wyjątkowe połączenie historii, nowoczesności i funkcjonalności. Miejsce, które naprawdę robi wrażenie.
Nieruchomość
- rodzaj budynkukamienica
- technologia budowlanacegła + styropian
- standard
- opłaty w czynszusprzątanie, Części wspólne, monitoring, woda, fundusz remontowy, administracja, wywóz śmieci
- opłaty wg licznikówprąd
- liczba pięter w budynku3
- garażmiejsce parkingowe przy budynku
- piwnica [m2]7,00 m2
- stan lokalubardzo dobry
- stan prawnyWłasność
- oknaPCV
- instalacjewymienione
- balkonbrak
- gaztak - miejski
- wodapiec gazowy dwufunkcyjny
- dojazdasfalt
- otoczenieZabudowane
- ogrzewaniepiec dwufunkcyjny
Pomieszczenia
- wysokość pomieszczeń2,8500
- powierzchnia pokoi35 17 m2
- podłogi pokoiparkiet
- typ kuchniz nowoczesną zabudową kuchenną
- rodzaj kuchnianeks kuchenny - połączony z salonem
- typ łazienkirazem z wc
- liczba łazienek1
- powierzchnia łazienki [m2]3,68
- glazura łazienkiglazura
@meritum.nieruchomosci.pl zostaw wiadomość
